High Street, Walton, Lutterworth Guide Price £415,000 (Freehold) - Ref: 2777
3 2 1
Overview
Set on a quiet, private road in the heart of Walton, Lutterworth, this charming three-storey character cottage sits proudly on a corner plot, perfectly blending period features with modern living. Owned by the current vendors for the past seven years, the home has been thoughtfully updated throughout, offering move-in-ready accommodation while retaining its timeless character.

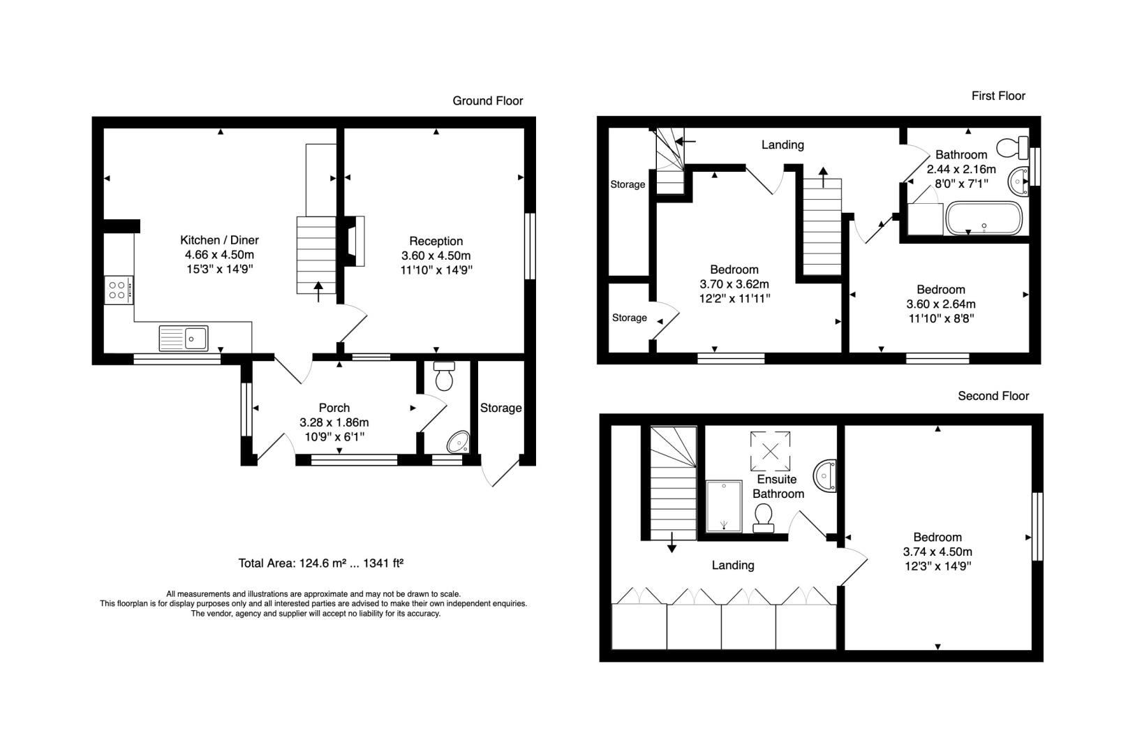
On entry, a welcoming porch provides clever utility space with integrated washing machines and dryers, along with a convenient downstairs WC.

The kitchen/diner is a true hub of the home – finished to a modern standard with wood flooring, soft-closing wall and base units, fitted dishwasher, integrated fridge/freezer and microwave, and ample space for a large dining table. A range of tall fitted cupboards provides excellent storage, currently housing small appliances such as the coffee machine and toaster – keeping the worktops clear and uncluttered. Perfect for both family meals and entertaining guests.

The living room exudes character with exposed beams, fitted cupboards and shelving with LED lighting, window shutters, and a beautiful stained-glass feature. A large log burner creates a cosy focal point, making this an inviting space for relaxing with family and friends.

On the first floor, you’ll find a versatile double bedroom/study overlooking the front, a second bedroom currently used as a nursery with bespoke storage, and a stylish family bathroom complete with a stand-alone bathtub, vanity unit, towel heater, and striking deep blue panelling.

The top floor houses a stunning master suite with exposed beams, space for a dressing area, and shutters framing the windows. The landing has been transformed into a feature space with fitted storage and shelving with LED lighting, enjoying views across the nearby farmer’s fields. A contemporary en-suite completes the floor, boasting a black-framed double shower with raindrop head and recessed shelving.

Outside, a private courtyard garden provides the ideal setting for summer BBQs and entertaining, with the bonus of multiple outdoor electricity points. To the side, there is a handy storage shed, while to the front of the home, you’ll find off-road parking for 3–4 vehicles.

Walton itself is a small and sought-after village, home to the popular Dog & Gun pub, surrounded by neighbouring countryside walks, and just a short drive to Husbands Bosworth, Market Harborough, Rugby and Leicester, with excellent access to the M1 and M6. Families will appreciate the fantastic local schools, which boast strong OFSTED ratings, including Gilmorton Chandler Church of England Primary School and St Andrew’s Church of England Primary School.

This is a one-off, rare opportunity to purchase such a fabulously finished home in an extremely popular location. A viewing is truly recommended to appreciate the stunning finish and charm of this character-rich cottage.


Additional Information:

Council tax - D
EV Charger Included
Electricity - £300PCM including EV Charging - Octopus Energy - smart meter
Broadband - BT Internet - 16 MB/s
Property Ref : 2777
Photographs
Floorplans
Print this Property
Additonal Information
Tenure: Freehold
EPC Rating: F
Council Tax Band: d
Internal Area: 1341.00 Square Feet
Council Tax Rate (Standard): £2,325
Max. Broadband Speed (estimated): 16 Mbps
Mains Gas: No
Mains Water: Yes
Mains Drainage: Yes
Mains Electricity: Yes
Property Reference: 2777
GDPR: By submitting an enquiry, you consent to your information being shared with the seller of this property or the agent representing the property. Your details will only be used to respond to your enquiry and arrange viewings or provide further information.
Property Questionnaire
Tenure
All information in this property questionnaire has been provided by the vendor.
Freehold
Leasehold
Share of Freehold
Estate Management Charge (where applicable)
Lease Details:
Ground Rent
Service charge
Start Date
Duration
years
Is the Freehold owned by the Resident Association?
No
Yes
Are you aware of any impending increases?
No
Yes
Previous year's service charge?
Is the property shared ownership?
No
Yes
Who owns the freehold?
What percentage share of the property are you selling?
%
What rent do you pay for the balance?
per annum
Services
Map View
Street View
Local Info
None
All
Dentist
Doctor
Hospital
Train
Bus
Cemetery
Cinema
Gym
Bar
Restaurant
Supermarket
Energy Performance Certificate
The full EPC chart is available either by contacting the office number listed below, or by downloading the Property Brochure
Energy Efficency Rating
CURRENT
F
(28)
POTENTIAL
C
(71)
Energy Efficency Rating
Current
Potential
(92+)
A
(81 to 91)
B
(69 to 80)
C
(55 to 68)
D
(39 to 54)
E
(21 to 38)
F
(1 to 20)
G
28
71
England & Wales
EU Directive 2002/91/EC
The energy efficiency rating is a measure of the overall efficiency of a home. The higher the rating the more energy efficient the home is and the lower the fuel bills will be.
Professional Contact Request Close

If you are a company representative or professional wishing to contact the agent of this property in relation on an on-going sale, simply complete the form below. Please note that all communication is monitored and logged. No unsolicited contact is permitted.

  Request Contact
Cancel
Logging your message..
Your message and contact details have been forwarded to the Seller.
  Continue
Oops! Please try again.
  Try Again
Share this Property! Close
High Street, Walton, Lutterworth Share with all of your friends & followers using the social media options above, or with a single friend using the form below
  Share
Cancel
By clicking send you agree to our privacy policy?
Sending your friend an email..
Success! Please ask your friend to check their email.
  Continue
Oops! Please try again, or contact us and we will send your friend a printed brochure.
  Try Again
Get in Touch! Close

Have a question? Send the Seller a message and let you know when they reply

  Send
Cancel
Sending your message..
We will let you know when the Seller replies
  Continue
Oops! Please try again.
  Try Again
Book a Viewing Cancel
FORM HERE
Thursday 21st January
7:30pm > 8:00pm
Requesting your viewing..
Your appointment has been requested, but requires confirmation by the property representitive.
Thursday 21st January
7:30pm > 8:00pm
Your appointment has been confirmed.
Thursday 21st January
7:30pm > 8:00pm
We couldn't secure that appointment. Please try selecting an alternative date / time.
Continue
Back
Confirm
Continue
Back
Mortgage Calculator Close