Overview
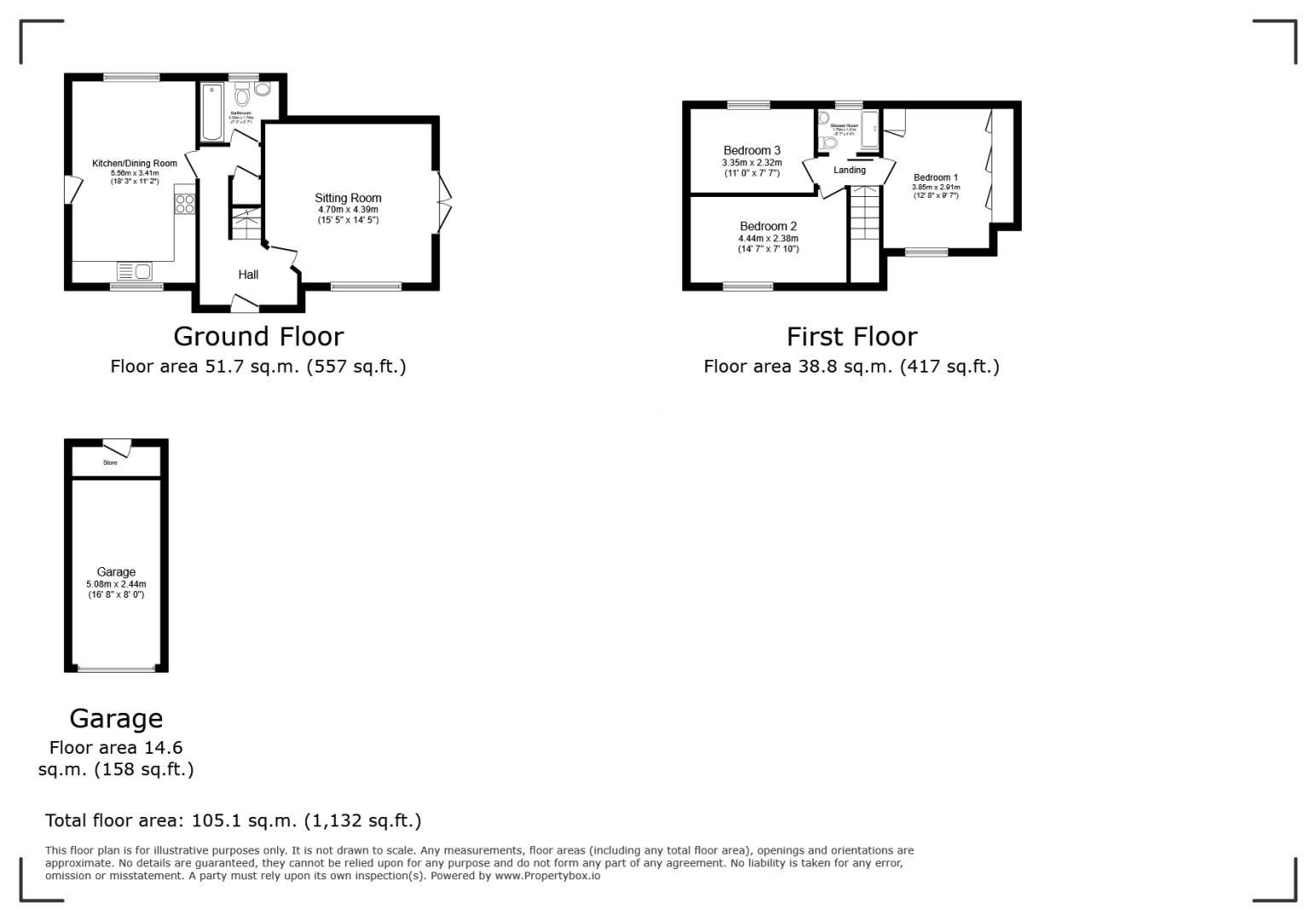
Set within a peaceful cul-de-sac in the highly regarded village of Thurnby, this beautifully renovated three-bedroom family home offers an elegant blend of contemporary styling, character features and countryside outlooks. Slightly elevated above the road, the property enjoys open field views, creating a wonderful sense of space, privacy and tranquillity.<br/><br/>The home has been thoughtfully redesigned by the current owners and is presented in turn-key condition, allowing the next buyer to move straight in and enjoy. A gently sloping driveway leads to a single garage, while the attractive frontage and elevated position provide immediate kerb appeal.<br/><br/>A charming brick-edged approach opens into a bright and welcoming entrance hall, finished with wood-effect flooring and a striking black staircase. The principal sitting room is both stylish and inviting, featuring a front-facing window, a contemporary electric fireplace with wooden surround, recessed lighting and French doors opening onto a lawned side garden.<br/><br/>The dining kitchen is beautifully appointed with cream cabinetry, oak shelving and wood-effect work surfaces, complemented by integrated appliances and modern lighting. With windows to both front and rear elevations and space for a dining table, it is perfectly suited to both everyday living and entertaining, with direct access to the garden.<br/><br/>A high-quality family bathroom completes the ground floor. Upstairs are two generous double bedrooms, both enjoying field views, along with a third bedroom ideal as a home office or guest room. A contemporary shower room serves the first floor.<br/><br/>Outside, the wrap-around gardens are arranged over two tiers and are mainly laid to lawn, bordered by mature hedging and established planting to create a private and secluded outdoor space. A terrace behind the garage provides an ideal spot for relaxing or entertaining.<br/><br/>Thurnby and neighbouring Bushby are amongst Leicestershire’s most desirable village locations, offering excellent schooling, strong community spirit and easy access to Leicester, Market Harborough and Oakham, with mainline rail services to London St Pancras in under an hour.<br/><br/>Tenure: Freehold<br/>Council Tax Band: D
Immaculately Renovated Three Bedroom Family Residence
Prestigious Village Setting Within A Peaceful Cul-De-Sac
Elevated Position Enjoying Open Field Views
Elegant Sitting Room With Feature Fireplace & Garden Access
Stylish Dining Kitchen With Integrated Appliances
Contemporary Ground Floor Bathroom With Luxury Finishes
Refined First Floor Shower Room Serving All Bedrooms
Driveway Parking & Single Garage
Private Wrap-Around Gardens With Terrace & Mature Planting